Projet PENTHOUSE - Aménagement d'un duplex en plein centre de Paris

La cliente vient d’acquérir un beau duplex dans le 18ème arrondissement de Paris. Elle a fait appel à moi pour l’aider à revoir l’aménagement intérieur, la circulation et les superficies des pièces. Elle souhaitait ajouter du rangements, installer une baignoire, une buanderie et se créer une grande chambre.
L’objectif c’est que l’appartement reste fonctionnel pour recevoir sa famille et confortable pour elle au quotidien. 

Aménagement d'un duplex de 100m2

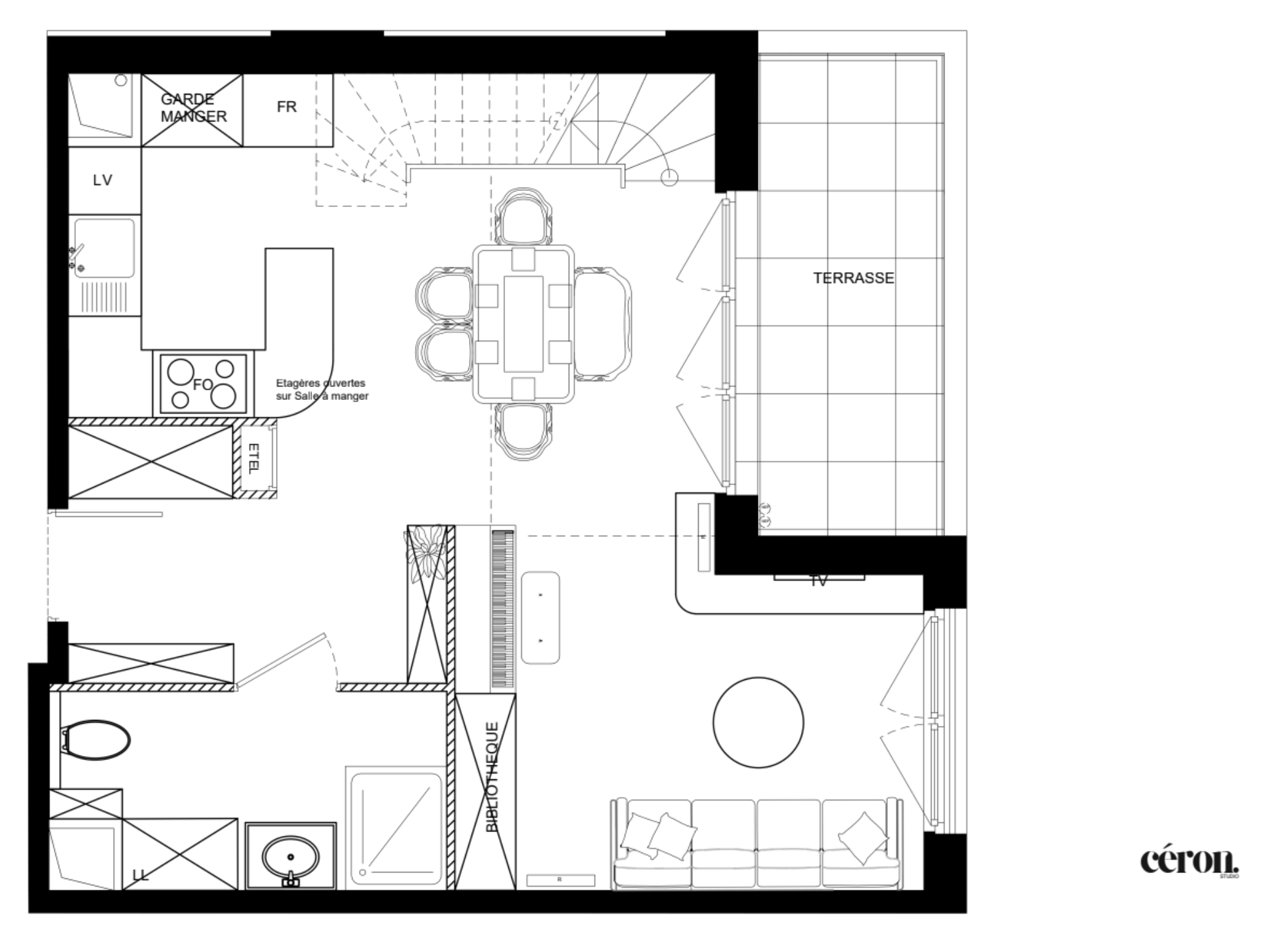
Revoir la circulation, les superficies des pièces et l’aménagement global de cet appartement. La cliente m’a demandé de penser cet appartement comme ci c’était le mien. J’ai voulu apporter à l’espace de la clarté, moins de cloisons et plus d’optimisation. A l’origine, l’appartement avait 3 chambres, ma cliente n’en voulait que deux. Il y avait 2 rangements prévus maintenant il y en a au moins un par pièce.

Penser l'aménagement autour de la lumière

Le grand sujet de cet appartement c’est la lumière. Etant donnée qu’elle a plusieurs terrasses avec baies vitrées, l’appartement est donc très lumineux. Elle souhaitait donc que je pense l’aménagement autour du passage de la lumière dans chaque espace. Pour ce faire, plusieurs vitraux, verrières et fenêtres intérieures seront installées pour faire traverser la lumière dans les espaces « sombres » comme l’entrée, les couloirs et les salles de bain.
Dans un second temps, nous allons travailler sur le concept architectural de l’appartement. Je vais me pencher sur l’histoire du quartier, les monuments aux alentours, pour imaginer une décoration en adéquation avec l’environnement de l’appartement.

Galerie Photo

Revue des plans intérieurs et extérieurs d’un appartement dans un immeuble neuf.
Projet en cours. Livraison 2028.